Выбрать квартиру
Квартира 15
Все квартиры

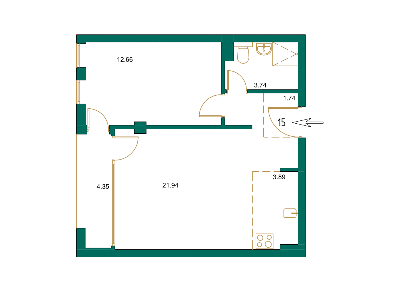
Квартира 15

Назад на план этажа Квартира с видом на городскую застройку и живописные горы имеет отдельную спальню и лоджию.

Выберите Этаж 2

Комнат 2

Метраж 48,32 м2

Спальня12,66

Гостиная21,94

Прихожая1,74

Кухня3,89

Лоджия4,35

Ванная комната3,74

Оформить заявку
Заявка

    Без мебели

    С мебелью

    Квартира 15
    Квартира 15