Wählen Sie eine Wohnung
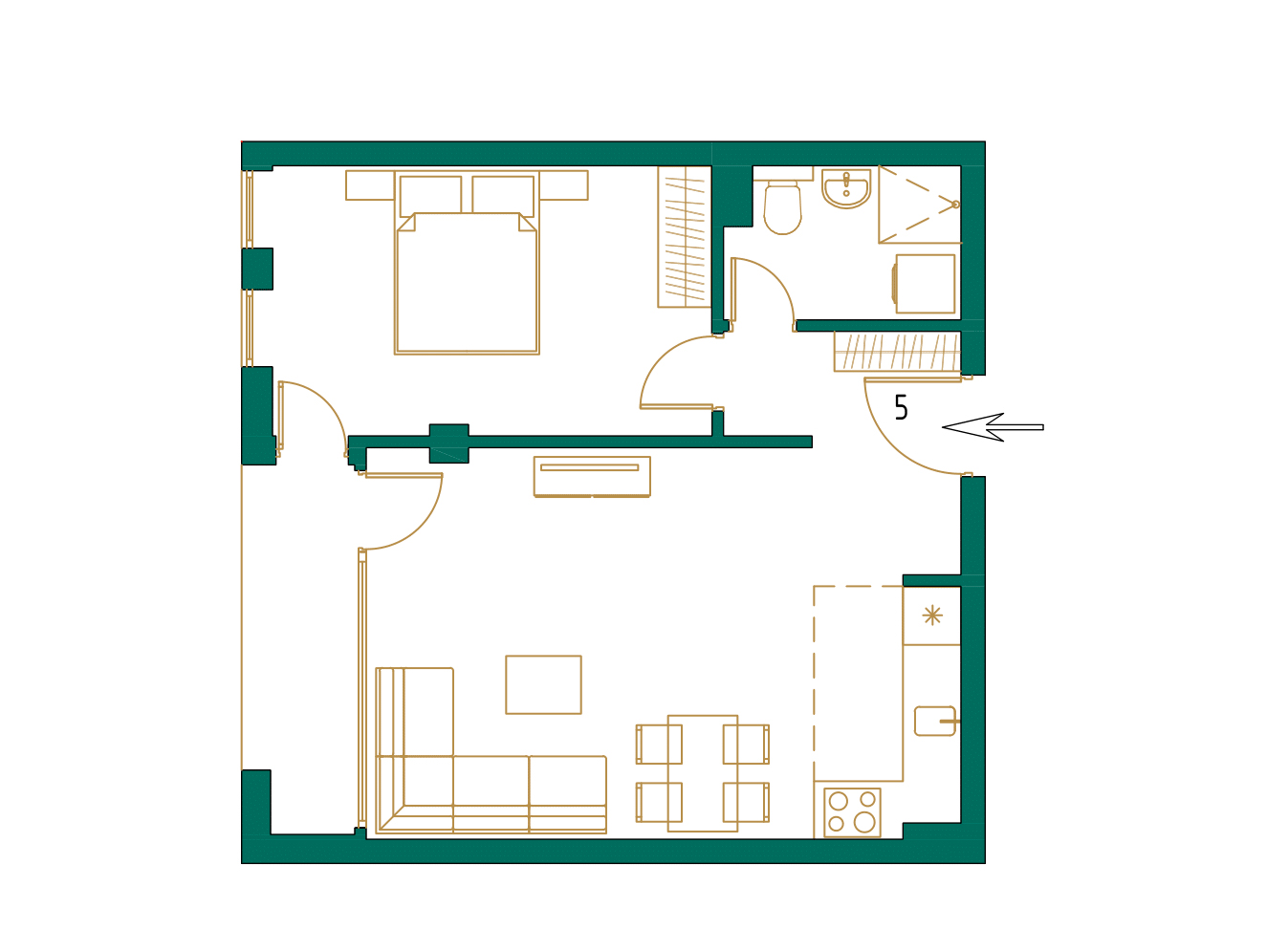
Wohnung 5
Zurück zum Grundriss Die Wohnung mit Blick auf die Stadtentwicklung und die malerischen Berge hat ein separates Schlafzimmer und eine Loggia.

Boden auswählen 1

Zimmer 2

Filmmaterial 48,32 м2

Schlafzimmer12,66

Wohnzimmer21,94

Flur1,74

Küche3,89

Loggia4,35

Badezimmer3,74

Reichen Sie eine Bewerbung ein
Gebot

    Keine Möbel

    Mit Möbeln

    Wohnung 5
    Wohnung 5