Choose an apartment
Apartment 5
All apartments

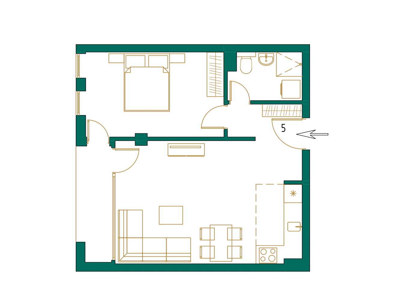
Apartment 5

Back to floor plan The apartment has a separate bedroom and a loggia with views of the urban area and picturesque mountains.

Select Floor 1

Rooms 2

Footage 48,32 м2

Bedroom12,66

Living room21,94

Hallway1,74

Kitchen3,89

Loggia4,35

Bathroom3,74

Submit an application
Request

    No furniture

    With furniture

    Apartment 5
    Apartment 5